One of a group of chalets which share a large outdoor hot tub, popular with groups
- Catered Chalet
- Sleeps 14
- 800m to slopes
- 450m to Resort Centre
- All rooms with full en-suite facilities
- Use of outdoor hot tub
- 7 minutes walk from Val d'Isère center
- Garage spaces available
Overview
Chalet Roc Merlet has a fabulous double height lounge and dining area, adding an extra feeling of light and space. From this lounge four French windows lead out onto a large wooden terrace with terrific views of dramatic mountain scenery. Each bedroom has its own balcony, as well as an en-suite bathroom with bath, shower and WC. Roc Merlet guests are also welcome to use the outdoor hot tub and shower facilities. Lounge and dining area have been recently refurbished to a high standard.
Description
Location
The chalet enjoys a peaceful location, around seven minutes walk from the busy town centre or just two minutes walk from the ski bus stop. You can also take the shuttle service to and from the slopes every morning and evening.
Chalet Layout
Recently refurbished, the living area is now cosy and contemporary. Moreover, the traditional-style wooden and stone with high ceilings lounge/kitchen area is really bright!
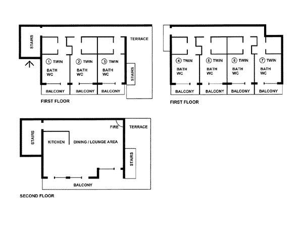
Ground Floor
Entrance hall
Ski and boot storage
Separate wc
First Floor
7 twin rooms all with bath, shower, basin, wc and balcony (4 in eaves)
Second Floor
Large lounge and dining area
Log fireplace
Kitchen
Large terrace
Facilities
Baths and hand towels are changed midweek.
Robes and slippers are provided.
Catering
Breakfast
A hearty, substantial breakfast is vital before a day on the slopes so that's what we serve. Our morning feasts have really evolved over the last few years and we get lots of very positive feedback about them.
There's a tempting range of continental options, fresh crusty baguette and porridge as well as a cooked breakfast. There's a different hot option each of the 5 mornings when breakfast is served to you by your host (please note this will be different on our short breaks in January).
No compromise is made on quality - we serve Heinz baked beans and ketchup, HP sauce and real teabags from the UK! Breakfast is served from 08.00 to 09.00.
Afternoon Tea
Tuck into tempting treats after your day in the mountains. Help yourself to a freshly baked cake or biscuits which will have been made by your host. There will also be fresh baguette, jams, tea and coffee to enjoy.
Evening Meals
Canapes and Champagne or fizz are served at 7:30pm as you unwind and relax for the evening. Our house Champagne is Drappier. We know the Drappier family and they are one of the most respected families in Champagne who make their top quality drinks using environmentally aware methods and only the best ingredients. Drappier is served on the first and last day of your holiday.
On the other evenings we serve a "methode Champenoise" made by our good friend and winemaker Nicolas Perret. Nicolas and family live just down the valley and provide all of our house wines too! Minimum wine miles, maximum quality!
Dinner service is informal as we want you to feel at home in your chalet. Your chalet host will prepare and serve all your meals. We work with local producers and suppliers to create an interesting and varied range of high quality home-made dishes. Whilst you will never go hungry, our staff have been trained in sustainability in the kitchen and we endeavour to keep food waste to a minimum.
After your three course dinner simply leave the table and relax with coffee and chocolates...if you have any room left!
Special diets
If there’s anything you’d rather not eat, whether for moral, sensory or digestive reasons, please let us know before you travel. We won’t charge you a penny extra for these special diets.
Children
We can serve dinner early for your youngsters who will likely be worn out after a day in the snow.
Your Chalet Host will prepare home-made, nutritious and fun dinners the kids will love!
Your Chalet Host has two days off during the week (usually Tuesday and Friday). We will lay out continental breakfast and afternoon tea to help yourself.
In the evening, it’s a great chance to sample the local cuisine and your Guest Services Manager in resort will be happy to make a restaurant reservation for you.
All Ensuite
Fireplace
Good for Groups
Parking
Terrace Balcony
Ski Guiding
About Val d'Isère
Val d'Isère skiing
Val d'Isère is justifiably ranked up there with the best resorts in the world. Lift linked with Tignes, the Val d'Isere & Tignes Ski Area (formerly the Espace Killy) has 300km of varied pistes to please everyone from beginners to pros. A choice of two glaciers, extensive pisted runs for all abilities including tree lined pistes and one of the most modern, efficient lift systems in the world make Val d'Isere a top 5 choice for absolutely everyone! Experts will love the "Face de Bellevarde" piste that looms over the town beneath the Olympic gondola. A permanent fixture on the World Cup calendar, it never gets any easier but the feeling of conquering it is hard to beat!
Val d'Isère ski resort
Val d'Isère has not only world class skiing but also boasts some world class après ski, and charming village centre and fantastic facilities.
The original Folie Douce at the top of the Daille gondola is probably the most famous of Val d'Isère's après haunts but is far from the only one. Cocorico's raucous live music at the foot of the slopes takes things to another level entirely. For those after a more chilled vibe, Banana Bar offers this within easy reach too. For a late night there's extensive choice, the Petit Danois pub in the heart of the village spills out around 1am, with Dicks Tea Bar around the corner to keep you going almost until first lifts!
Val d'Isère' isn't just for party animals, the resort has plenty of high end choices for the more refined taste, plus families are very well catered for. Michelin starred dining can be found, plus extensive facilities. The huge leisure centre was completed in recent years and offers a fantastic off-slope experience!
In summary, Val d'Isère could top the charts - in our view it's the single best ski resort anywhere in the Alps, with something for absolutely everyone.
Alpine Charm
Choice of Restaurants
Easy Slope Access
Family Friendly
Good For Snowboarding
Good for Apres Ski
Great Off-Piste
High Altitude
Large Ski Area
Lively Night Life
Lively and Young
Mountain Restaurants
Reliable Snow
Scenic
Ski In Ski Out
Snow Park
Snow Sure
Child Care
Gym
Hang Gliding
Hot Tub
Paragliding
Resort Bus
Sauna
Swimming Pool
Walking Trails
Cross-Country: 44.0
Cross-Country Equipment
Dog Sledding
Heliskiing
Off-Piste: Very good
Off-Piste Equipment
Off-Piste Guides
Ski Doos
Ski Touring
Torch Light Descents
Floor Plans
We have the following floor plans available for Chalet Roc Merlet -

Location
Chalet Roc Merlet
• 73150 Val-d'Isère, France
Holiday Details
Our ski specialists are here to help!



















































