Just two minutes from the piste with purpose built creche on ground floor
- Catered Chalet
- Sleeps 23
- 200m to slopes
- In Resort Centre
- Spacious & attractive chalet
- Superb location
- En-suite facilities for every room
- Creche for children
Overview
Chalet MarMau is a modern, attractive chalet in a sunny position just above the village centre with fabulous mountain views. All ten bedrooms have ensuite bathrooms, warm wooden flooring and ample storage.
There is a mixture of twin, triple and family bedrooms in MarMau which means it is a very flexible chalet for families and large groups.
The bright and spacious lounge/dining area has a large stone fireplace and the shops, restaurants and bars are a short two minute walk away.
Description
Location
The chalet is in an ideal location, with the slopes opposite and the village centre a mere two minutes walk away.
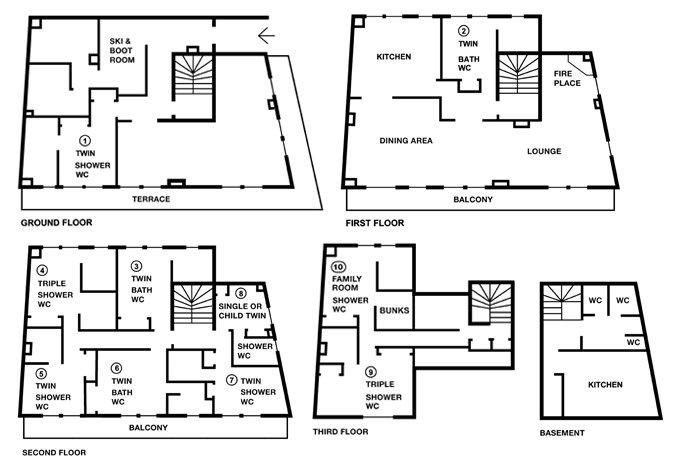
Chalet Layout
Ground Floor
1 twin room with shower, basin, w.c. & balcony
Boot warmers
First Floor
1 twin room with bath, basin & w.c.
Kitchen
Lounge/dining areas with log fireplace & large balcony
Second Floor
4 twin rooms, 2 with bath, basin & w.c. (1 with balcony), 2 with shower, basin, w.c. & balcony
1 triple room with 3 single beds, shower, basin & w.c.
1 single room (or child twin) with shower, basin & w.c.
Third Floor
1 family room with twin beds, child bunks, shower, basin & w.c. 1 triple room with 3 single beds, shower, basin & w.c.
Facilities
Hand and bath towels are changed midweek.
Catering
Breakfast
A hearty, substantial breakfast is vital before a day on the slopes so that's what we serve. Our morning feasts have really evolved over the last few years and we get lots of very positive feedback about them.
There's a tempting range of continental options, fresh crusty baguette and porridge as well as a cooked breakfast. There's a different hot option each of the 5 mornings when breakfast is served to you by your host (please note this will be different on our short breaks in January).
No compromise is made on quality - we serve Heinz baked beans and ketchup, HP sauce and real teabags from the UK! Breakfast is served from 08.00 to 09.00.
Afternoon Tea
Tuck into tempting treats after your day in the mountains. Help yourself to a freshly baked cake or biscuits which will have been made by your host. There will also be fresh baguette, jams, tea and coffee to enjoy.
Evening Meals
Canapes and Champagne or fizz are served at 7:30pm as you unwind and relax for the evening. Our house Champagne is Drappier. We know the Drappier family and they are one of the most respected families in Champagne who make their top quality drinks using environmentally aware methods and only the best ingredients. Drappier is served on the first and last day of your holiday.
On the other evenings we serve a "methode Champenoise" made by our good friend and winemaker Nicolas Perret. Nicolas and family live just down the valley and provide all of our house wines too! Minimum wine miles, maximum quality!
Dinner service is informal as we want you to feel at home in your chalet. Your chalet host will prepare and serve all your meals. We work with local producers and suppliers to create an interesting and varied range of high quality home-made dishes. Whilst you will never go hungry, our staff have been trained in sustainability in the kitchen and we endeavour to keep food waste to a minimum.
After your three course dinner simply leave the table and relax with coffee and chocolates...if you have any room left!
Special diets
If there’s anything you’d rather not eat, whether for moral, sensory or digestive reasons, please let us know before you travel. We won’t charge you a penny extra for these special diets.
Children
We can serve dinner early for your youngsters who will likely be worn out after a day in the snow.
Your Chalet Host will prepare home-made, nutritious and fun dinners the kids will love!
Your Chalet Host has two days off during the week (usually Tuesday and Friday). We will lay out continental breakfast and afternoon tea to help yourself.
In the evening, it’s a great chance to sample the local cuisine and your Guest Services Manager in resort will be happy to make a restaurant reservation for you.
All Ensuite
Close To Slopes
Fireplace
Good for Groups
Terrace Balcony
Child Friendly
Ski Guiding
About La Tania
La Tania skiing
Part of the world renowned Three Valleys, La Tania has direct access to both Méribel and Courchevel, and all the benefits of the Three Valleys ski area. Needless to say then that all levels and tastes are catered for when it comes to skiing La Tania. With the 600+km Three Valleys on the doorstep, all of the runs down into La Tania are north-facing and tree lined. They hold onto the snow for longer than plenty of higher altitude resorts that face south and in bad weather, the trees give shelter and help with visibility.
La Tania ski resort
Built for the 1992 Albertville Olympics, La Tania has developed over the years into a standalone resort in its own right. The original part of La Tania comprises apartments and a couple of big hotels centered around the main lifts, shops and restaurants. Above the centre lies the delightful chalet village with many delightfully set wooden buildings amongst the trees, with pistes running on both sides. There's no such thing as a bad location in La Tania. Nightlife is laid back and fun, with a couple of lively apres ski bars and late opening too.
Alpine Charm
Beginner Friendly
Easy Slope Access
Family Friendly
Good Beginners
Great for Mixed Abilities
Large Ski Area
Mountain Restaurants
Scenic
Child Care
Gym
Hang Gliding
Hot Tub
Paragliding
Sauna
Swimming Pool
Walking Trails
Cross-Country: 66.0
Cross-Country Equipment
Dog Sledding
Off-Piste: Excellent
Off-Piste Equipment
Off-Piste Guides
Ski Doos
Torch Light Descents
Floor Plans
We have the following floor plans available for Chalet MarMau -

Location
Chalet MarMau
• D98, 73120 Courchevel, France
Holiday Details
Our ski specialists are here to help!
























































































































