Quality 4* apartments sleeping up to 9 guests with the option to upgrade to half board, your lift pass is included too!
- Apartment
- Self Catering
- Ski-In / Ski-Out
- 1000m to Resort Centre
- Sauna & fitness room in nearby hotel
- 6-Day lift pass included
- Ski & Boot Room
- Free Wi-fi
Overview
The apartments are split across several buildings, so their appearance and included amenities may vary. They all have fantastic slope-side access and your 6-day lift pass is included too.
Getting onto Pyhä's slopes couldn't be easier, clip in your skis and head down green Skiway run starting from the corner of the hotel or head down the red Polar piste to access the ski lifts. When returning from a day on the slopes, you can ski back down to the Pyhätunturi via the black graded Piste Palander, which is recommended for advanced skiers only.
The resort centre is around 1km from the ski centre, where you can find a larger supermarket and a handful of restaurants - perfect for the evenings when you don't feel like cooking, taxis can be arranged for a local fee.
Description
Location
One minute's walk to the Hotel Pyhätunturi where you can find a sauna, fitness room, bar and restaurant.
Slope side location with access to the lifts and ski school meeting point via connecting green runs. The apartments are up to a 200 metre walk from the slopes.
Around 1km to the resort centre where you can find a well stocked supermarket and a handful of restaurants accessible by bus or 15 minute walk.
The bus stop is just outside the Hotel Pyhatunturi.
Taxis can be arranged for a local fee (approx. €15 each way)
Rooms
Studios are around 33m² sleeping two to three people. The open plan studios have twin beds plus a single sofa bed for a third person, a well-equipped kitchenette and dining area, fireplace, private sauna and shower. These apartments are located in the PyhaLinna Chalet apartment building, approx. 200 metres to the Hotel Pyhätunturi.
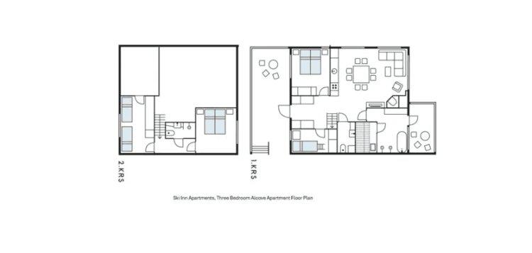
Three Bedroom + Alcove Apartments are around 93m² and sleep up to nine people. Downstairs there is one twin bedroom and an alcove with bunk beds, upstairs there is one double bedroom and a triple bedroom with a bunk bed and single bed. You'll also have a spacious open plan living area- kitchenette, fireplace, a bath, two WCs, and a private sauna, plus two terrace areas. These apartments are located in the PyhaLinna Chalet apartment building, approx. 200 metres to the Hotel Pyhätunturi.
One Bedroom + Alcove Suites are around 43m² and sleep up to five people. There's one twin bedroom and an alcove with bunk beds, the sofa bed in the open plan lounge-kitchentte can be made up for a fifth person. You'll have a well-equipped kitchen with a stovetop and oven, a dining area for four people, a private sauna, a bathroom with WC and a spacious balcony. The suites are located in a separate building. These apartments are located in the Pyha Suites building, approx. 100 metres to the Hotel Pyhätunturi.
Two Bedroom Apartments are around 55m² sleep up to five people. These apartments have a twin bedroom with an ensuite and a smaller triple bedroom with bunk beds and a single bed: depending on the room, two of the beds are either upper or lower bunks. Each apartment has a spacious open plan living area-kitchenette, two WCs, sauna and private outdoor jacuzzi. These apartments are located in the modern Kultakero building.
One linen set with bedding and towels is provided per person, per week. End of stay cleaning is included.
Apartment facilities
Open plan living area-kitchenette
TV
Well-equipped kitchenette with oven, microwave, fridge and dining area
Private sauna in each apartment
Drying cupboard
Free Wi-Fi
WC
Shared laundry facilities
Ski lockers
Cots and highchairs are available on request (approx.€15. Pay locally)
Please note that the property has quiet hours between 10pm and 8am
Facilities
Free access to the sauna and fitness room at the Hotel Pyhätunturi
Free Wi-Fi
Ski storage in each building
6 day lift pass included with your stay
Catering
The Pyhä Suites are self catered apartments with optional half board upgrade.
If you have upgraded to half board, you can enjoy a varied breakfast buffet and a three course evening meal each day at the Hotel Pyhätunturi, which is less than a minutes walk away. The menu often features seasonal ingredients and Lappish specialities.
Each of the suites have a well equipped kitchenette with an oven, stovetop, microwave, kettle, fridge, coffee machine and dishwasher. There's a small convenience shop in the Hotel Pyhätunturi and a larger supermarket in the resort centre. If you don't feel like cooking there's a handful of restaurants in the resort centre (approx. 1km downhill) serving traditional Lappish cuisine and international dishes including pizza, burgers and grilled meats.
Please specify any dietary requirement at the time of booking so we can be prepared for your holiday.
About Pyhä
One of Finland's best-known resorts, Pyha is found up on the Arctic Circle in Lapland. This is generally a place for Father Christmas and better skiers and boarders, with some awesome off-piste, deep powder and steep verticals. Pyha isn't great for beginners. It's set in woodland terrain and the skiing is pretty limited, but there are plenty of other winter pursuits to occupy you. There's only one hotel that tends to take a younger crowd, while families and larger groups usually rent cabins in the trees. Pyha offers a very interesting and very different skiing experience, but the travel required is considerable.
Hot Tub
Ice Rink
Walking Trails
Cross-Country: 92.0
Cross-Country Equipment
Dog Sledding
Off-Piste: Very good
Off-Piste Equipment
Ski Doos
Sleigh Rides
Torch Light Descents
Floor Plans
We have the following floor plans available for PhyaLinna Ski Inn Apartments -




Holiday Details
Our ski specialists are here to help!








