Popular chalet in a good central location offering quick & easy access to the slopes!
- Catered Chalet
- Sleeps 4
- 100m to slopes
- In Resort Centre
- Great location
- Modern chalet
- Wifi
- Fabulous views
Overview
Chalet La Terrasse is a stylish chalet apartment located within the smart Aspen Lodge development in the very centre of Courchevel Moriond. Built only a few years ago, Aspen Lodge quickly became a popular addition to the resort thanks to its excellent location — less than three minutes’ walk from the main lifts and pistes, and even closer to the village’s shops, bars and restaurants.
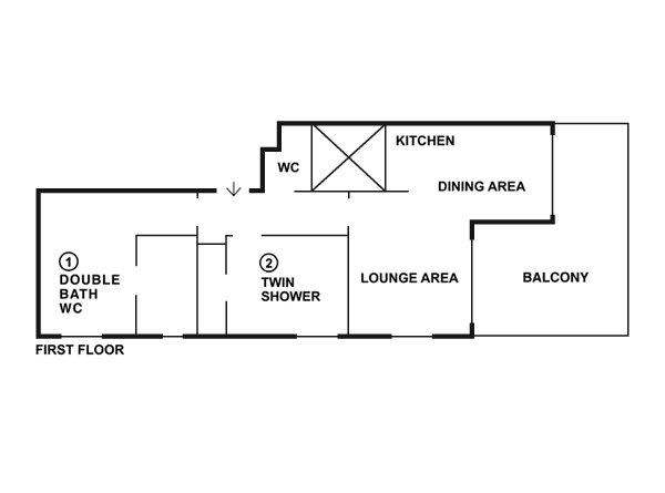
La Terrasse accommodates four guests in two bedrooms with two bathrooms. The lounge and dining areas are bright, spacious and very comfortable, finished in an elegant contemporary alpine style.
The chalet takes its name from the large private terrace accessed through expansive French windows. This impressive outdoor space offers stunning views across the slopes of both Courchevel 1850 and Courchevel 1550, as well as beautiful sunsets over the valley below.
Both bedrooms are stylishly decorated. The master bedroom features a bath with shower, WC and basin, along with access to the terrace. The second bedroom has an ensuite shower and basin, with a WC located opposite.
Chalet La Terrasse is an excellent setting for family and friends looking to enjoy a private chalet experience together. For a larger group, we can also offer Chalet Bellevue, which sleeps four guests and is located in the same building.
Description
Location
Located right in the centre of Courchevel Moriond, it's a mere 3 minutes walk to the pistes, and very close to the main shops and bars.
Chalet Layout
1 Double with bath, shower, wc & terrace
1 Twin with shower & separate wc. Please note, there is little space between these twin beds
Facilities
Hand and bath towels changed midweek
Hairdryer
Complimentary toiletries
Services of chalet host
Catering
Breakfast
A hearty, substantial breakfast is vital before a day on the slopes so that's what we serve. Our morning feasts have really evolved over the last few years and we get lots of very positive feedback about them.
There's a tempting range of continental options, fresh crusty baguette and porridge as well as a cooked breakfast. There's a different hot option each of the 5 mornings when breakfast is served to you by your host (please note this will be different on our short breaks in January).
No compromise is made on quality - we serve Heinz baked beans and ketchup, HP sauce and real teabags from the UK! Breakfast is served from 08.00 to 09.00.
Afternoon Tea
Tuck into tempting treats after your day in the mountains. Help yourself to a freshly baked cake or biscuits which will have been made by your host. There will also be fresh baguette, jams, tea and coffee to enjoy.
Evening Meals
Canapes and Champagne or fizz are served at 7:30pm as you unwind and relax for the evening. Our house Champagne is Drappier. We know the Drappier family and they are one of the most respected families in Champagne who make their top quality drinks using environmentally aware methods and only the best ingredients. Drappier is served on the first and last day of your holiday.
On the other evenings we serve a "methode Champenoise" made by our good friend and winemaker Nicolas Perret. Nicolas and family live just down the valley and provide all of our house wines too! Minimum wine miles, maximum quality!
Dinner service is informal as we want you to feel at home in your chalet. Your chalet host will prepare and serve all your meals. We work with local producers and suppliers to create an interesting and varied range of high quality home-made dishes. Whilst you will never go hungry, our staff have been trained in sustainability in the kitchen and we endeavour to keep food waste to a minimum.
After your three course dinner simply leave the table and relax with coffee and chocolates...if you have any room left!
Special diets
If there’s anything you’d rather not eat, whether for moral, sensory or digestive reasons, please let us know before you travel. We won’t charge you a penny extra for these special diets.
Children
We can serve dinner early for your youngsters who will likely be worn out after a day in the snow.
Your Chalet Host will prepare home-made, nutritious and fun dinners the kids will love!
Your Chalet Host has two days off during the week (usually Tuesday and Friday). We will lay out continental breakfast and afternoon tea to help yourself.
In the evening, it’s a great chance to sample the local cuisine and your Guest Services Manager in resort will be happy to make a restaurant reservation for you.
All Ensuite
Fireplace
Terrace Balcony
About Courchevel 1650
Courchevel on a realistic budget, without compromising on nightlife, atmosphere and quality of accommodation? Look no further than 1650. Just a few minutes away from Courchevel 1850, but far more down-to-earth, friendly and within reach of the average skier. Courchevel 1650 has a vast selection of chalets, some high-end hotels and some for those on a lower budget. It also has bars and restaurants with relatively reasonable prices and, if you really must, a bus service to 1850 that takes 7-10 minutes and runs until late. The atmosphere is more laid-back, with a lot of seasonnaires making this their base.
Courchevel 1650 also has a great little ski area that rarely gets visited by people staying elsewhere in the Three Valleys. The result is that the slopes are far less crowded, even at peak times and there's a good selection of runs to suit all. It's not as quick to get to Meribel and Val Thorens compared to 1850, but just make the journey part of the fun!
Beginner Friendly
Easy Slope Access
Family Friendly
Good Beginners
Good For Snowboarding
Good for Apres Ski
Great Off-Piste
Great for Mixed Abilities
Large Ski Area
Mountain Restaurants
Reliable Snow
Scenic
Snow Park
Child Care
Paragliding
Resort Bus
Walking Trails
Cross-Country: 120.0
Cross-Country Equipment
Dog Sledding
Night Skiing
Off-Piste: Very good
Off-Piste Equipment
Off-Piste Guides
Ski Doos
Sleigh Rides
Torch Light Descents
Floor Plans
We have the following floor plans available for Chalet La Terrasse -

Holiday Details
Our ski specialists are here to help!






























































































